Similar offers
DFI-MW-1446 -- || -- DFI-MW-1448 -- || -- DFI-MW-1509 -- || -- DFI-MW-1511 -- || --Gdynia, Orłowo
apartment for rent
No. of rooms
3
3
m2
90,00
90,00
zł/m2
46,67
46,67
4 200 zł
Property description
LOCATION:
An exclusive apartment located in the most beautiful seaside district of Gdynia, Orłowo. It is the perfect place to live. At the same time, close to the center, full of commercial and service infrastructure, in the immediate vicinity there are numerous shops, Klif Shopping Center, a marketplace, and educational institutions. The area is well communicated - 50 m to the bus stop, 2 km to the center (city hall). There are many attractions nearby: Aqua Park - on the border of Sopot, Adventure Park Kolibki Gdynia, Pomeranian Science and Technology Park, Gdynia Aquarium, Naval Museum. A 15-minute walk through charming, wooded walking areas is enough to reach the Orłowo pier and the sandy beach. The perfect atmosphere, peace and quiet, while being located in the middle of the Tri-City metropolis, give this place unique qualities, creating an ideal space to live.
BUILDING:
An intimate, two-story terraced townhouse from 1980. The building looks very presentable from the outside, it is insulated, the façade is refreshed. Staircase clean and tidy. In front of the main entrance, the gate is secured with an intercom, the facility is monitored. Public parking spaces are located right next to the property.
PROPERTY:
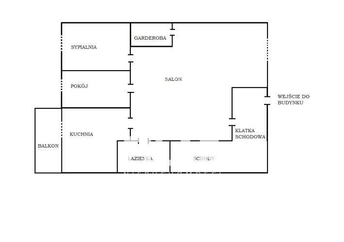
The apartment is located on the first floor of a tenement house, the great advantage is that only this apartment is located there, which ensures great privacy. The property is finished to a high standard. Exceptional door woodwork, with tops, noble materials, subdued colors. The area of 90 m2 consists of two bedrooms, a dressing room, a spacious living room, a bathroom with a hydromassage cabin and a kitchen with direct access to the terrace and all household appliances. The apartment is equipped with internet and cable TV. It is possible to leave the furniture or take it. The property is ideal for various types of activities, such as an office, an aesthetic medicine office or an office.
FEES:
Rent: 3700 PLN.
Additional fees: according to consumption (heating - gas, electricity, water), TV / Internet about PLN 1000.
Deposit required.
We invite you to the presentation.
Rent: 3500 PLN net.
Deposit required.
Additional fees: according to consumption (heating - gas, electricity, water), tv and internet about 1000 PLN.
The perfect climate, peace and quiet, while being located in the middle of the Tri-City metropolis, give this place unique values.
We invite you to presentation.
An exclusive apartment located in the most beautiful seaside district of Gdynia, Orłowo. It is the perfect place to live. At the same time, close to the center, full of commercial and service infrastructure, in the immediate vicinity there are numerous shops, Klif Shopping Center, a marketplace, and educational institutions. The area is well communicated - 50 m to the bus stop, 2 km to the center (city hall). There are many attractions nearby: Aqua Park - on the border of Sopot, Adventure Park Kolibki Gdynia, Pomeranian Science and Technology Park, Gdynia Aquarium, Naval Museum. A 15-minute walk through charming, wooded walking areas is enough to reach the Orłowo pier and the sandy beach. The perfect atmosphere, peace and quiet, while being located in the middle of the Tri-City metropolis, give this place unique qualities, creating an ideal space to live.
BUILDING:
An intimate, two-story terraced townhouse from 1980. The building looks very presentable from the outside, it is insulated, the façade is refreshed. Staircase clean and tidy. In front of the main entrance, the gate is secured with an intercom, the facility is monitored. Public parking spaces are located right next to the property.
PROPERTY:
The apartment is located on the first floor of a tenement house, the great advantage is that only this apartment is located there, which ensures great privacy. The property is finished to a high standard. Exceptional door woodwork, with tops, noble materials, subdued colors. The area of 90 m2 consists of two bedrooms, a dressing room, a spacious living room, a bathroom with a hydromassage cabin and a kitchen with direct access to the terrace and all household appliances. The apartment is equipped with internet and cable TV. It is possible to leave the furniture or take it. The property is ideal for various types of activities, such as an office, an aesthetic medicine office or an office.
FEES:
Rent: 3700 PLN.
Additional fees: according to consumption (heating - gas, electricity, water), TV / Internet about PLN 1000.
Deposit required.
We invite you to the presentation.
Rent: 3500 PLN net.
Deposit required.
Additional fees: according to consumption (heating - gas, electricity, water), tv and internet about 1000 PLN.
The perfect climate, peace and quiet, while being located in the middle of the Tri-City metropolis, give this place unique values.
We invite you to presentation.
Basic
Offer no.
DFI-MW-1649
Size
90,00 m²
No. of rooms
3
Floor
1floor
Details
Building type
vir_listalng_
Costs depending on use
Water, gas, Current
Condition
very good
Guarantee deposit type
to be agreed
House community fee
1 500 PLN
Premises type
one-storey
Terraces
terrace
Contact agent